Elementos de identidade
Código de referência
Nome e localização da entidade custodiadora
Nível de descrição
Título
Data(s)
- 1925 (Produção)
Dimensão
1 drawing
Nome do produtor
Elementos de conteúdo e estrutura
Âmbito e conteúdo
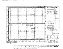
Northern Pacific Engineering Drawing: Fruit Storage at Pasco, Washington, prepared in 1925. Burlington Northern File Number 10,032, Reference Number 10110, Sheet 001.
Sistema de arranjo
Condições de acesso e uso dos elementos
Condições de acesso
Please see the Great Northern Railway Historical Society Collection Management Policy for further information. Engineering drawings for which the image is not provided in Railroad Archives Online may be consulted by contacting the Great Northern Railway Historical Society.
Acesso físico
Acesso técnico
Condiçoes de reprodução
Please see the Great Northern Railway Historical Society Reproduction Policy for further information.
Idiomas do material
inglês
Escrita do material
latim
Notas ao idioma e script
Instrumentos de descrição
Instrumento de pesquisa gerado
Elementos de aquisição e avaliação
História custodial
Ownership of Northern Pacific subjects in the Timothy Miller Collection resides in the the Great Northern Railway Historical Society unless otherwise noted.
Fonte imediata de aquisição
Donated by Timothy Miller. Accrual W2008-001 received on April 5, 2008.
Informações de avaliação, seleção e eliminação
Ingressos adicionais
Elementos de materiais relacionados
Existência e localização de originais
Existência e localização de cópias
Material arquivístico relacionado
Descrições relacionadas
Elemento de notas
Notas especializadas
Identificador(es) alternativo(s)
Elemento de controle de descrição
Regras ou convenções
Describing Archives - A Content Standard (DACS) 2nd Edition 2013
Fontes utilizadas
Nota do arquivista
Description prepared by W. Sornsin.
Pontos de acesso
Pontos de acesso - Assuntos
Pontos de acesso - Locais
Pontos de acesso - Nomes
- Northern Pacific Railroad Company (Assunto)
