Identity elements
Reference code
Name and location of repository
Level of description
Item
Title
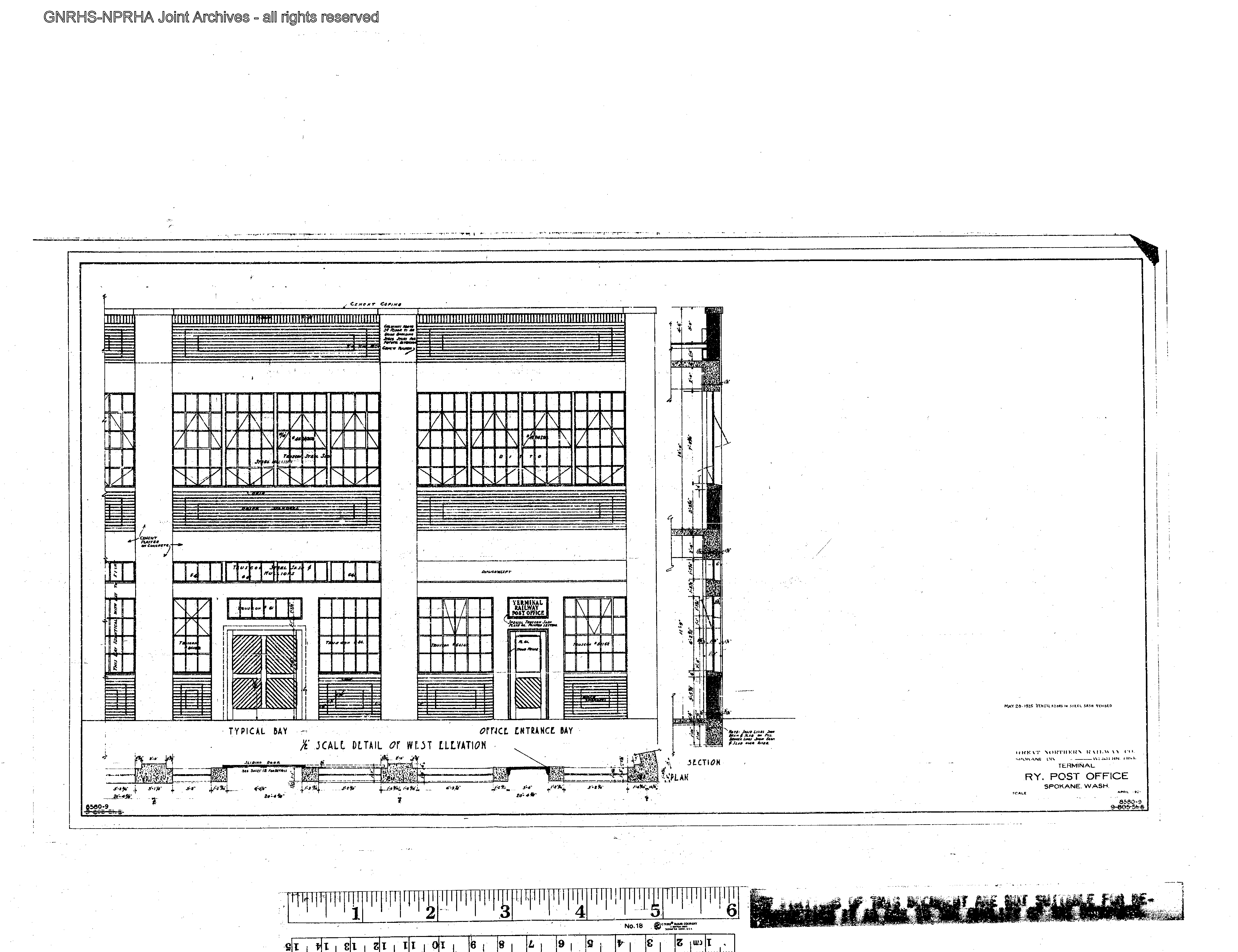
Great Northern Engineering Drawing, Terminal - Railway Post Office at Spokane, Washington, 1925
Date(s)
- 1925 (Creation)
Extent
1 drawing
Name of creator
Content and structure elements
Scope and content
Great Northern Engineering Drawing: Terminal - Railway Post Office at Spokane, Washington, prepared in 1925. Burlington Northern File Number 8580-9, Reference Number 10104, Sheet 009054.
System of arrangement
Conditions of access and use elements
Conditions governing access
Please see the Great Northern Railway Historical Society Collection Management Policy for further information. Engineering drawings for which the image is not provided in Railroad Archives Online may be consulted by contacting the Great Northern Railway Historical Society.
Physical access
Technical access
Conditions governing reproduction
Please see the Great Northern Railway Historical Society Reproduction Policy for further information.
Languages of the material
- English
Scripts of the material
- Latin
Language and script notes
Finding aids
Generated finding aid
Acquisition and appraisal elements
Custodial history
Ownership of Great Northern subjects in the Timothy Miller Collection resides in the the Great Northern Railway Historical Society unless otherwise noted.
Immediate source of acquisition
Donated by Timothy Miller. Accrual W2008-001 received on April 5, 2008.
Appraisal, destruction and scheduling information
Accruals
Related materials elements
Existence and location of originals
Existence and location of copies
Related archival materials
Related descriptions
Notes element
Specialized notes
Alternative identifier(s)
Description control element
Rules or conventions
Describing Archives - A Content Standard (DACS) 2nd Edition 2013
Sources used
Archivist's note
Description prepared by W.Sornsin.
Access points
Subject access points
Place access points
Name access points
- Great Northern Railway Company (U.S.) (Subject)
