Great Northern Engineering Drawing, Freight House, Metal at Havre, Montana, 1969

Open original Digital object

Identity elements

Reference code

US WaBuPNRA D0027-003-009-008-002-Struc001028

Level of description

Item

Title

Great Northern Engineering Drawing, Freight House, Metal at Havre, Montana, 1969

Date(s)

  • 1969 (Creation)

Extent

1 drawing

Name of creator

Content and structure elements

Scope and content

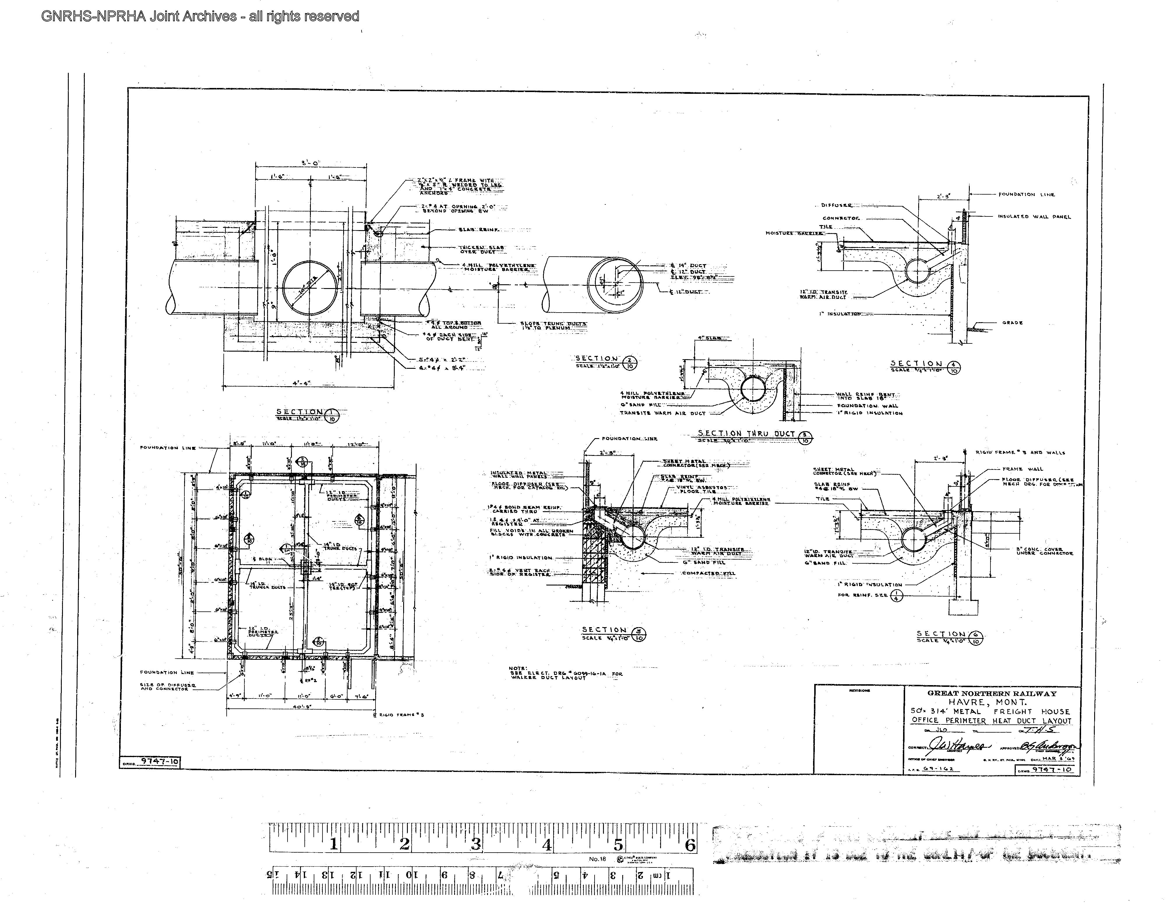
Great Northern Engineering Drawing: Freight House, Metal at Havre, Montana, prepared in 1969. Burlington Northern File Number 9747-10, Reference Number 10103.

System of arrangement

Conditions of access and use elements

Conditions governing access

Please see the Great Northern Railway Historical Society Collection Management Policy for further information. Engineering drawings for which the image is not provided in Railroad Archives Online may be consulted by contacting the Great Northern Railway Historical Society.

Physical access

Technical access

Conditions governing reproduction

Please see the Great Northern Railway Historical Society Reproduction Policy for further information.

Languages of the material

  • English

Scripts of the material

  • Latin

Language and script notes

Finding aids

Generated finding aid

Acquisition and appraisal elements

Custodial history

Ownership of Great Northern subjects in the Timothy Miller Collection resides in the the Great Northern Railway Historical Society unless otherwise noted.

Immediate source of acquisition

Donated by Timothy Miller. Accrual W2008-001 received on April 5, 2008.

Appraisal, destruction and scheduling information

Accruals

Related materials elements

Existence and location of originals

Existence and location of copies

Related archival materials

Related descriptions

Notes element

Specialized notes

Alternative identifier(s)

Description control element

Rules or conventions

Describing Archives - A Content Standard (DACS) 2nd Edition 2013

Sources used

Archivist's note

Description prepared by W.Sornsin.

Access points

Subject access points

Place access points

Name access points

Genre access points

Digital object metadata

Digital object (Master) rights area

Digital object (Reference) rights area

Digital object (Thumbnail) rights area

Accession area

Related subjects

Related people and organizations

Related genres

Related places