Elementos de identidad
Código de referencia
Nombre y localización del repositorio
Nivel de descripción
Unidad documental simple
Título
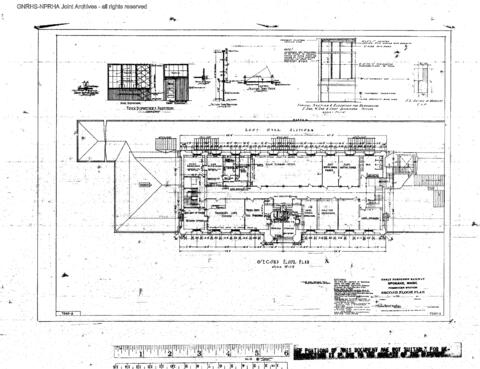
Great Northern Engineering Drawing, Depot at Spokane, Washington, 1968
Fecha(s)
- 1968 (Creación)
Extensión
1 drawing
Nombre del productor
Área de contenido y estructura
Alcance y contenido
Great Northern Engineering Drawing: Depot at Spokane, Washington, prepared in 1968. Burlington Northern File Number 7543-3, Reference Number 10104, Sheet 003.
Sistema de arreglo
Condiciones de acceso y uso de los elementos
Condiciones de acceso
Please see the Great Northern Railway Historical Society Collection Management Policy for further information. Engineering drawings for which the image is not provided in Railroad Archives Online may be consulted by contacting the Great Northern Railway Historical Society.
Acceso físico
Acceso técnico
Condiciones
Please see the Great Northern Railway Historical Society Reproduction Policy for further information.
Idiomas del material
- inglés
Escritura(s) de los documentos
- latín
Notas sobre las lenguas y escrituras
Instrumentos de descripción
Generated finding aid
Elementos de adquisición y valoración
Historial de custodia
Ownership of Great Northern subjects in the Timothy Miller Collection resides in the the Great Northern Railway Historical Society unless otherwise noted.
Origen del ingreso
Donated by Timothy Miller. Accrual W2008-001 received on April 5, 2008.
Valoración, selección y eliminación
Acumulaciones
Elementos de material relacionado
Existencia y localización de originales
Existencia y localización de copias
Unidades de descripción relacionadas.
Descripciones relacionadas
Elemento notas
Notas especializadas
Identificador/es alternativo(os)
Área de control de la descripción
Reglas o convenciones
Describing Archives - A Content Standard (DACS) 2nd Edition 2013
Fuentes
Nota del archivista
Description prepared by W.Sornsin.
Puntos de acceso
Puntos de acceso por materia
Puntos de acceso por lugar
Puntos de acceso por autoridad
- Great Northern Railway Company (U.S.) (Materia)
