Identity elements
Reference code
Name and location of repository
Level of description
Item
Title
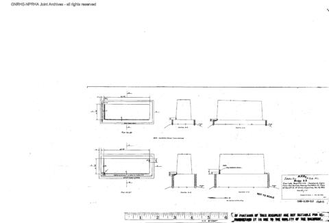
Northern Pacific Engineering Drawing: Cavities, Piers, Bridge 3.2 - Lake Pend Oreille, West of Sandpoint, Idaho, 1953
Date(s)
- 1953 (Creation)
Extent
1 Drawing
Name of creator
Content and structure elements
Scope and content
Northern Pacific Engineering Drawing: Cavities, Piers, Bridge 3.2 - Lake Pend Oreille, west of Sandpoint, Idaho, Line Segment 045, Milepost 3.88. Sheet 1268 - 5, 1953.
System of arrangement
Conditions of access and use elements
Conditions governing access
Please see the Great Northern Railway Historical Society Collection Management Policy for further information. Engineering drawings for which the image is not provided in Railroad Archives Online may be consulted by contacting the Great Northern Railway Historical Society.
Physical access
Technical access
Conditions governing reproduction
Please see the Great Northern Railway Historical Society Reproduction Policy for further information.
Languages of the material
- English
Scripts of the material
- Latin
Language and script notes
Finding aids
Generated finding aid
Acquisition and appraisal elements
Custodial history
Ownership of Great Northern subjects in this collection resides in the Great Northern Railway Historical Society.
Immediate source of acquisition
Accession W2008-001 (JSRH 220.1), aperture cards, was donated by Timothy Miller to the Great Northern Railway Historical Society and ownership resides in the Great Northern Railway Historical Society. Digital images of the aperture cards were prepared under the joint sponsorship of the Great Northern Railway Historical Society and the Northern Pacific Railway Historical Association; ownership of the digital images is jointly held by the Great Northern Railway Historical Society and the Northern Pacific Railway Historical Association. Accrual W2008-001 received April 5, 2008.
Appraisal, destruction and scheduling information
Accruals
Related materials elements
Existence and location of originals
Existence and location of copies
Related archival materials
Related descriptions
Notes element
Specialized notes
Alternative identifier(s)
Description control element
Rules or conventions
Describing Archives - A Content Standard (DACS) 2nd Edition 2013
Sources used
Archivist's note
Description prepared by W. Sornsin
Access points
Subject access points
Place access points
Name access points
- Northern Pacific Railroad Company (Subject)
